メゾンカルム西新宿 【05月12日更新】
仲介手数料無料
初期費用クレジットカード決済可能

| 間取り図 | 階数 | 間取り | 面積 | 賃料 | 管理費 | 敷金 | 礼金 | お気に入り | お問合わせ |
|---|---|---|---|---|---|---|---|---|---|
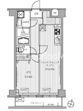
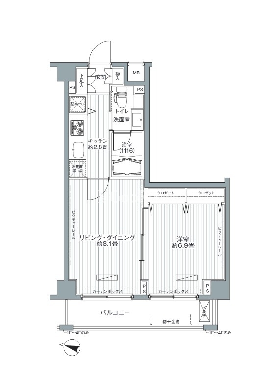
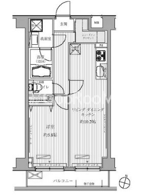
| 3階 | 1LDK | 45.6m2 | 20.3万円 | 8,000円 | 1.0ヶ月 | 1.0ヶ月 |
|
お問合わせ | |
| 5階 | 1LDK | 41.75m2 | 19.8万円 | 7,000円 | 1.0ヶ月 | 1.0ヶ月 |
|
お問合わせ | |
| 5階 | 1LDK | 45.6m2 | 20.7万円 | 8,000円 | 1.0ヶ月 | 1.0ヶ月 |
|
お問合わせ |
Outline メゾンカルム西新宿の詳細情報
| 住所 | 東京都新宿区西新宿4-22-24 Map | ||
| 交通 | |||
| 築年月 | 2009年7月 | 総戸数 | 72戸 |
| 階建 | 5階建 | 種別/構造 | - |
| 賃料 | 198,000円 ~ 207,000円 | 共益費/管理費 | 7,000円 ~ 8,000円 |
| 間取り | 1LDK | 専有面積 | 41.75m2 ~ 45.60m2 |
| 特長 | |||
| 設備 | |||
| 備考 |
※こちらのお部屋情報の他にも空き部屋・空き予定のお部屋もございますので、メールやお電話にてお問い合わせください。 ※掲載している物件がご成約している場合もございますのでご了承ください。 ※掲載詳細に相違がある場合は、弊社スタッフの情報を優先させていただきます。 ※ペット相談可の物件やSOHO利用については、お部屋ごとに禁止とされている場合もございますので御注意下さい。お客様に代わって弊社スタッフが確認と交渉を行います。 ※駐車場、駐輪場については、メールやお電話にてお問い合わせください。お客様からのお問い合わせをお待ちしています。 |
||
| URL | 「メゾンカルム西新宿」の詳細はこちら | ||
| 関連リンク | |||
メゾンカルム西新宿について
「メゾンカルム西新宿」は東京都新宿区西新宿4-22-24にある2009年築の5階建のマンションです。
最寄りの駅は西新宿五丁目駅になります。
その他、初台駅 都庁前駅 が利用可能です。
05月14日現在、空室が3室となっております。
メゾンカルム西新宿には、24hセキュリティ、宅配ボックス、オートロックなどのうれしい設備がついております。お部屋ごとの設備も是非確認してみてください。
また、初期費用をクレジットカードでお支払いいただくことも可能です。
内見の申し込みや物件・部屋の設備でご不明な点がございましたら、是非お問い合わせくださいませ。
都心エリア高級マンションのお部屋探しは、「賃貸コンシェルジュ」へお任せください。
【運営会社 / お問い合わせ先】
賃貸コンシェルジュ (株式会社エスティリンク)
TEL:03-5468-8899
営業時間:10:00~19:00 定休日:(年中無休)
※地図上に表示される物件のアイコンは付近住所に所在することを表すものであり、実際の物件所在地とは異なる場合がございます。
-
更新 05/12
- パークアクシス方南町
- 空室:1 部屋
- 面積:43.70m2
東京メトロ丸ノ内線
『方南町駅』徒歩4分
間取り:1LDK
賃料:17.2万円
-
更新 05/12
- パークリュクス初台
- 空室:1 部屋
- 面積:41.55m2
京王線
『初台駅』徒歩3分
間取り:1LDK
賃料:21.5万円
-
更新 05/12
- プライムアーバン芝浦ロフト
- 空室:1 部屋
- 面積:25.74m2
JR山手線
『田町駅』徒歩10分
間取り:1K
賃料:15.8万円
-
- スルバリエ梶ヶ谷
- 空室:1 部屋
- 面積:61.80m2
東急田園都市線
『梶が谷駅』徒歩9分
間取り:3LDK
賃料:16.3万円
-
更新 05/11
- コンフォルテハイム本駒込
- 空室:1 部屋
- 面積:48.36m2
東京メトロ南北線
『本駒込駅』徒歩3分
間取り:1SLDK
賃料:19.4万円
-
更新 05/09
- キャナルスクウェア豊洲
- 空室:6 部屋
- 面積:45.48m2〜55.78m2
東京メトロ有楽町線
『豊洲駅』徒歩9分
間取り:1LDK〜2LDK
賃料:18.8万円〜27.1万円
-
更新 05/09
- シャリエ錦糸町石原
- 空室:2 部屋
- 面積:54.75m2〜59.31m2
都営浅草線
『本所吾妻橋駅』徒歩10分
間取り:2LDK
賃料:20.8万円〜21.8万円
-
更新 05/12
- パークキューブ板橋本町
- 空室:7 部屋
- 面積:23.97m2〜40.13m2
都営三田線
『板橋本町駅』徒歩1分
間取り:1R〜1LDK
賃料:10.5万円〜17.7万円
-
更新 05/09
- グランドゥール代々木大山
- 空室:3 部屋
- 面積:25.20m2〜37.80m2
小田急小田原線
『代々木上原駅』徒歩5分
間取り:1R〜1DK
賃料:12.8万円〜21.5万円
-
更新 05/09
- エクセレントシティ恵比寿
- 空室:1 部屋
- 面積:43.46m2
東京メトロ日比谷線
『広尾駅』徒歩7分
間取り:1LDK
賃料:27.0万円
-
更新 05/08
- ヒューリック荏原
- 空室:1 部屋
- 面積:28.83m2
東急目黒線
『武蔵小山駅』徒歩9分
間取り:1DK
賃料:13.7万円
-
更新 05/09
- ラスカシエロ下北沢
- 空室:1 部屋
- 面積:49.96m2
小田急小田原線
『下北沢駅』徒歩1分
間取り:2LDK
賃料:24.0万円
-
更新 05/12
- パークアクシス方南町
- 空室:1 部屋
- 面積:43.70m2
東京メトロ丸ノ内線
『方南町駅』徒歩4分
間取り:1LDK
賃料:17.2万円
-
更新 05/12
- パークリュクス初台
- 空室:1 部屋
- 面積:41.55m2
京王線
『初台駅』徒歩3分
間取り:1LDK
賃料:21.5万円
-
更新 05/12
- ザ・パークハウス恵比寿
- 空室:3 部屋
- 面積:58.59m2〜70.65m2
JR山手線
『恵比寿駅』徒歩4分
間取り:2LDK
賃料:40.0万円〜50.0万円
-
更新 05/12
- プライムアーバン芝浦ロフト
- 空室:1 部屋
- 面積:25.74m2
JR山手線
『田町駅』徒歩10分
間取り:1K
賃料:15.8万円
-
更新 05/12
- キャピタルゲートプレイス
- 空室:2 部屋
- 面積:77.39m2
東京メトロ有楽町線
『月島駅』徒歩1分
間取り:3LDK
賃料:59.8万円〜120.0万円
-
更新 05/12
- セレサ東日本橋
- 空室:2 部屋
- 面積:40.02m2〜40.06m2
都営浅草線
『東日本橋駅』徒歩4分
間取り:1LDK
賃料:18.7万円〜19.4万円
-
更新 05/12
- グリーンパーク日本橋堀留町
- 空室:1 部屋
- 面積:40.54m2
東京メトロ日比谷線
『小伝馬町駅』徒歩3分
間取り:1LDK
賃料:20.0万円
-
更新 05/11
- 品川Vタワー
- 空室:1 部屋
- 面積:70.21m2
JR山手線
『品川駅』徒歩6分
間取り:2LDK
賃料:40.0万円
-
更新 05/11
- ウェリスタワー千代田岩本町
- 空室:2 部屋
- 面積:31.72m2〜55.40m2
東京メトロ日比谷線
『小伝馬町駅』徒歩2分
間取り:1LDK〜2LDK
賃料:18.0万円〜30.0万円
-
更新 05/11
- グランスイート広尾
- 空室:2 部屋
- 面積:64.47m2〜85.67m2
東京メトロ日比谷線
『広尾駅』徒歩6分
間取り:1LDK〜2LDK
賃料:46.0万円〜68.0万円
-
更新 05/09
- シーフォルム板橋3
- 空室:12 部屋
- 面積:41.20m2〜56.81m2
都営三田線
『新板橋駅』徒歩2分
間取り:1LDK〜2LDK
賃料:21.1万円〜32.7万円
-
更新 05/11
- KDXレジデンス西馬込
- 空室:1 部屋
- 面積:25.27m2
都営浅草線
『西馬込駅』徒歩4分
間取り:1K
賃料:11.9万円
賃貸コンシェルジュ
(株式会社エスティリンク)
営業時間:10:00~19:00
定休日:(年中無休)
-
更新 05/12
- パークアクシス虎ノ門
- 空室:5 部屋
- 面積:23.00m2〜50.46m2
都営三田線
『御成門駅』徒歩7分
間取り:1R〜2LDK
賃料:14.4万円〜34.5万円
-
更新 05/12
- カーサスプレンディッド麻布十番
- 空室:3 部屋
- 面積:24.00m2〜30.73m2
東京メトロ南北線
『麻布十番駅』徒歩4分
間取り:1R〜1K
賃料:15.2万円〜19.2万円
-
更新 05/12
- ザ・レジデンス六本木
- 空室:3 部屋
- 面積:99.46m2〜110.14m2
東京メトロ南北線
『六本木一丁目駅』徒歩3分
間取り:3LDK
賃料:100.0万円〜125.0万円
-
更新 05/12
- クレストコート白金高輪
- 空室:7 部屋
- 面積:32.03m2〜51.45m2
東京メトロ南北線
『白金高輪駅』徒歩5分
間取り:1DK〜1LDK
賃料:20.6万円〜38.1万円
-
更新 05/12
- 東京ポートシティ竹芝レジデンスタワー
- 空室:6 部屋
- 面積:39.79m2〜96.24m2
ゆりかもめ
『竹芝駅』徒歩1分
間取り:1R〜2SLDK
賃料:25.8万円〜67.7万円
メゾンカルム西新宿は、西新宿五丁目駅から5分以内の駅近物件になります。
また、宅配ボックス、駐輪場、24時間ゴミ置き場、近隣スーパーストアなどがあり利便性が良い物件となっております。
メゾンカルム西新宿は、現在空室が3室となっています。
内見をご検討や物件・お部屋についてご不明な点がございましたら賃貸コンシェルジュまで気軽にお問い合わせください