賃貸物件一覧

建物 4,400 棟 部屋 16,457
表示棟数:

シティハウス本郷三丁目

分譲賃貸

ペット相談

初期費用クレジットカード決済可能

賃料 31.0万円 管理費 18,000円
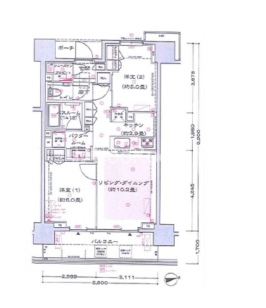
間取り 2LDK 面積 54.40m2
住所 東京都文京区本郷3-39-1 築年月 2012年10月
交通

東京メトロ丸ノ内線本郷三丁目駅』徒歩5

都営大江戸線本郷三丁目駅』徒歩3

間取り図 階数 間取り 面積 賃料 管理費 敷金 礼金 お気に入り お問合わせ
2LDK 14階 2LDK 54.4m2 31.0万円 18,000円 1.0ヶ月 2.0ヶ月
全ての空室情報を表示 その他-2 閉じる
建物 4,400棟中  3993~3993棟表示
お気に入りに追加しました
お気に入りを解除しました
検索条件を保存しました
現在の検索条件
こだわりの条件
会社情報
賃貸コンシェルジュ

賃貸コンシェルジュ
(株式会社エスティリンク)

営業時間:10:00~19:00

定休日:(年中無休)

03-5468-8899
おすすめの物件