賃貸物件一覧

建物 4,666 棟 部屋 17,222
表示棟数:

パークアクシス御成門

仲介手数料無料

ペット相談

初期費用クレジットカード決済可能

賃料 36.5万円 管理費 0円
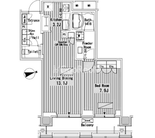
間取り 1LDK 面積 55.16m2
住所 東京都港区西新橋3-20-1 築年月 2011年10月
交通

都営三田線御成門駅』徒歩4

JR山手線新橋駅』徒歩10

東京メトロ銀座線新橋駅』徒歩10

東京メトロ日比谷線神谷町駅』徒歩10

間取り図 階数 間取り 面積 賃料 管理費 敷金 礼金 お気に入り お問合わせ
1LDK 17階 1LDK 55.16m2 36.5万円 - 1.0ヶ月 1.0ヶ月
全ての空室情報を表示 その他-2 閉じる
建物 4,666棟中  4661~4661棟表示
お気に入りに追加しました
お気に入りを解除しました
検索条件を保存しました
現在の検索条件
こだわりの条件
会社情報
賃貸コンシェルジュ

賃貸コンシェルジュ
(株式会社エスティリンク)

営業時間:10:00~19:00

定休日:(年中無休)

03-5468-8899
おすすめの物件