デザイナーズマンションの賃貸物件一覧
建物 1,839 棟
部屋 4,580 室
表示棟数:
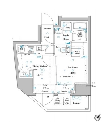
コンフォリア東陽町 【04月29日更新】
コンフォリア秋葉原イースト 【04月29日更新】
グラシアプレイス押上 【04月29日更新】
仲介手数料無料
ペット相談
敷金ゼロ
礼金ゼロ
初期費用クレジットカード決済可能

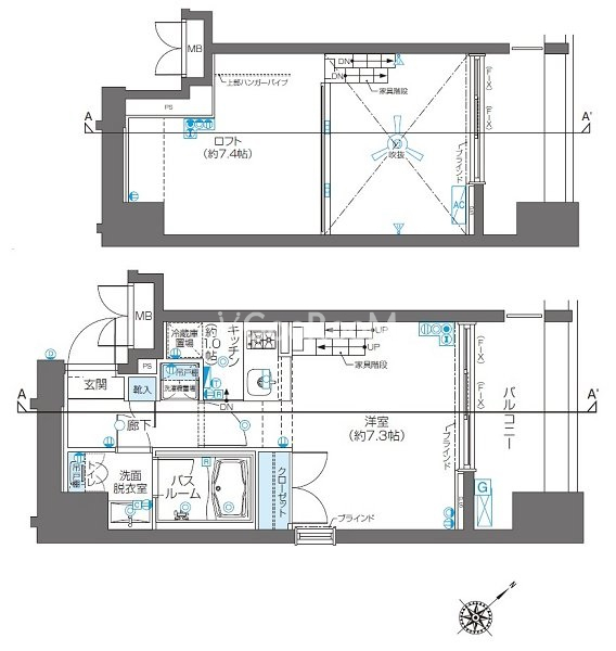
| 賃料 | 17.5万円 | 管理費 | 20,000円 |
|---|---|---|---|
| 間取り | 1LDK | 面積 | 40.65m2 |
| 住所 | 東京都墨田区向島3-9-3 | 築年月 | 2021年1月 |
| 交通 |
東武スカイツリーライン『とうきょうスカイツリー駅』徒歩8分 |
||
| 間取り図 | 階数 | 間取り | 面積 | 賃料 | 管理費 | 敷金 | 礼金 | お気に入り | お問合わせ |
|---|---|---|---|---|---|---|---|---|---|
| 3階 | 1LDK | 40.65m2 | 17.5万円 | 20,000円 | 0.0ヶ月 | 0.0ヶ月 |
|
お問合わせ |
ウィルテラス森下四丁目 【04月29日更新】
リーブルグラント神楽坂 【04月29日更新】
プラウドフラット西早稲田 【04月29日更新】
お気に入りに追加しました
お気に入りを解除しました
検索条件を保存しました
会社情報
賃貸コンシェルジュ
(株式会社エスティリンク)
営業時間:10:00~19:00
定休日:(年中無休)
おすすめの物件
-
更新 05/07
- 六本木ビュータワー
- 空室:6 部屋
- 面積:33.30m2〜57.98m2
東京メトロ南北線
『六本木一丁目駅』徒歩3分
間取り:1R〜2LDK
賃料:21.9万円〜41.9万円
-
更新 05/07
- サンテラス芝公園
- 空室:1 部屋
- 面積:34.81m2
都営大江戸線
『赤羽橋駅』徒歩2分
間取り:1K
賃料:12.3万円
-
更新 05/07
- ラ・トゥール芝公園
- 空室:2 部屋
- 面積:88.74m2〜112.40m2
都営三田線
『芝公園駅』徒歩2分
間取り:1LDK〜2LDK
賃料:72.5万円〜110.0万円
-
更新 05/07
- ルネパルティーレ汐留
- 空室:7 部屋
- 面積:53.47m2〜81.29m2
JR山手線
『新橋駅』徒歩8分
間取り:1K〜2LDK
賃料:33.0万円〜50.0万円
-
更新 05/07
- フロンティアレジデンスザタワー品川
- 空室:6 部屋
- 面積:29.59m2〜40.07m2
JR山手線
『品川駅』徒歩9分
間取り:1LDK
賃料:17.8万円〜26.7万円