バス・トイレ別の賃貸物件一覧
建物 4,383 棟
部屋 16,345 室
表示棟数:
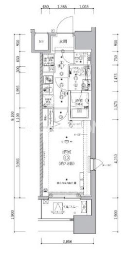
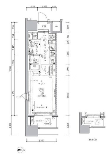
アローズ茗荷谷 【04月17日更新】
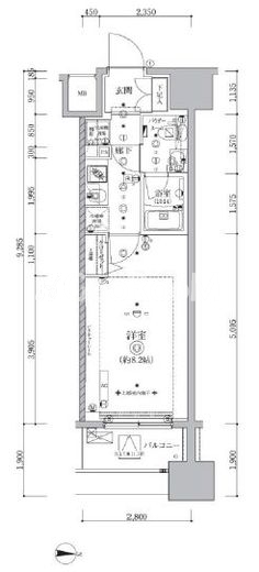
RJRプレシア菊川駅前 【04月17日更新】
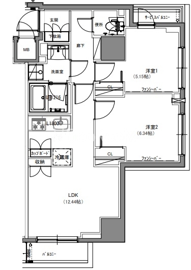
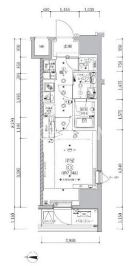
コンフォリア・リヴ南六郷 【04月17日更新】
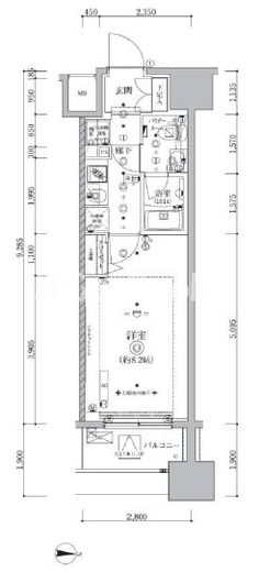
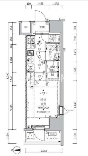
オルタナ亀戸 【04月17日更新】
ラグゼナ東陽町 【04月17日更新】
ラグゼナ錦糸町 【04月17日更新】
ブランシエスタ東陽町 【04月17日更新】
お気に入りに追加しました
お気に入りを解除しました
検索条件を保存しました
会社情報
賃貸コンシェルジュ
(株式会社エスティリンク)
営業時間:10:00~19:00
定休日:(年中無休)
おすすめの物件
-
更新 04/20
- 城山トラストコート
- 空室:5 部屋
- 面積:66.23m2〜250.03m2
東京メトロ日比谷線
『神谷町駅』徒歩4分
間取り:1LDK〜4LDK
賃料:45.0万円〜220.0万円
-
更新 04/20
- メゾン芝浦
- 空室:1 部屋
- 面積:68.40m2
JR山手線
『田町駅』徒歩6分
間取り:2LDK
賃料:26.7万円
-
更新 04/20
- クレッセント麻布ビュータワー
- 空室:1 部屋
- 面積:62.18m2
都営大江戸線
『赤羽橋駅』徒歩2分
間取り:2LDK
賃料:34.0万円
-
更新 04/20
- 六本木ヒルズレジデンス
- 空室:1 部屋
- 面積:133.58m2
東京メトロ日比谷線
『六本木駅』徒歩4分
間取り:3LDK
賃料:140.0万円
-
更新 04/20
- グレンパーク西麻布
- 空室:2 部屋
- 面積:30.20m2〜36.94m2
東京メトロ日比谷線
『広尾駅』徒歩10分
間取り:1R〜1DK
賃料:17.5万円〜18.0万円
