バス・トイレ別の賃貸物件一覧
建物 4,810 棟
部屋 17,858 室
表示棟数:
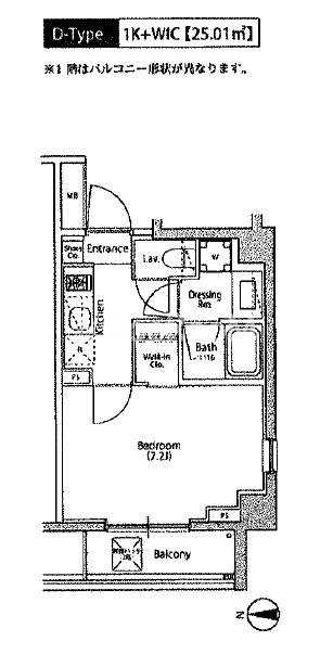
ラティエラ大森
BPRレジデンス祐天寺
仲介手数料無料
初期費用クレジットカード決済可能

| 間取り図 | 階数 | 間取り | 面積 | 賃料 | 管理費 | 敷金 | 礼金 | お気に入り | お問合わせ |
|---|---|---|---|---|---|---|---|---|---|
| 2階 | 1R | 23.68m2 | 11.9万円 | 10,000円 | 1.0ヶ月 | 1.0ヶ月 |
|
お問合わせ |
お気に入りに追加しました
お気に入りを解除しました
検索条件を保存しました
会社情報
賃貸コンシェルジュ
(株式会社エスティリンク)
営業時間:10:00~19:00
定休日:(年中無休)
おすすめの物件
-
更新 04/14
- ラティエラ乃木坂
- 空室:1 部屋
- 面積:30.89m2
東京メトロ千代田線
『乃木坂駅』徒歩7分
間取り:1K
賃料:14.4万円
-
更新 04/14
- シティハウス東京新橋
- 空室:6 部屋
- 面積:31.39m2〜49.35m2
都営三田線
『御成門駅』徒歩3分
間取り:1LDK
賃料:19.3万円〜28.3万円
-
更新 04/14
- 麻布市兵衛町ホームズ
- 空室:2 部屋
- 面積:59.99m2〜79.99m2
東京メトロ南北線
『六本木一丁目駅』徒歩1分
間取り:1LDK〜2LDK
賃料:33.0万円〜45.0万円
-
更新 04/14
- フレンシア麻布十番ノース
- 空室:1 部屋
- 面積:28.96m2
東京メトロ南北線
『麻布十番駅』徒歩2分
間取り:1R
賃料:17.5万円
-
更新 04/14
- メインステージ白金高輪駅前
- 空室:3 部屋
- 面積:22.90m2〜23.02m2
東京メトロ南北線
『白金高輪駅』徒歩1分
間取り:1K
賃料:11.7万円〜13.0万円