牛込神楽坂駅の賃貸物件一覧

建物 35 棟 部屋 83
表示棟数:

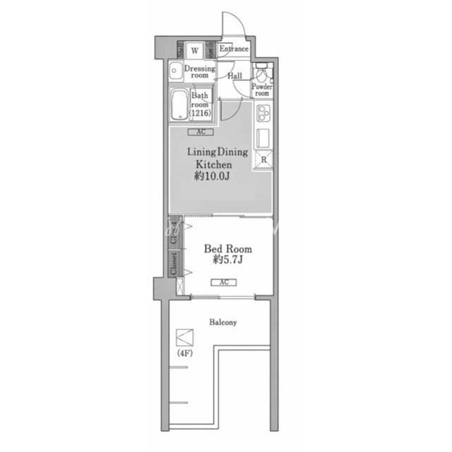
クリオラベルヴィ市ヶ谷 【04月17日更新】

分譲賃貸

初期費用クレジットカード決済可能

賃料 17.3万円 管理費 15,000円
間取り 1LDK 面積 33.54m2
住所 東京都新宿区払方町20-1 築年月 2017年4月
交通

東京メトロ有楽町線市ケ谷駅』徒歩5

東京メトロ南北線市ケ谷駅』徒歩5

東京メトロ東西線神楽坂駅』徒歩10

JR中央・総武線飯田橋駅』徒歩13

都営大江戸線牛込神楽坂駅』徒歩7

間取り図 階数 間取り 面積 賃料 管理費 敷金 礼金 お気に入り お問合わせ
1LDK 4階 1LDK 33.54m2 17.3万円 15,000円 1.0ヶ月 1.0ヶ月
全ての空室情報を表示 その他-2 閉じる
建物 35棟中  18~18棟表示
お気に入りに追加しました
お気に入りを解除しました
検索条件を保存しました
現在の検索条件
牛込神楽坂駅
こだわりの条件
牛込神楽坂駅
会社情報
賃貸コンシェルジュ

賃貸コンシェルジュ
(株式会社エスティリンク)

営業時間:10:00~19:00

定休日:(年中無休)

03-5468-8899
おすすめの物件