東銀座駅の賃貸物件一覧

建物 16 棟 部屋 42
表示棟数:

イニシア築地レジデンス

分譲賃貸

ペット相談

初期費用クレジットカード決済可能

賃料 20.1万円 管理費 9,000円
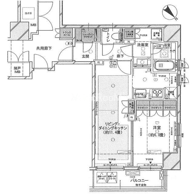
間取り 1LDK 面積 40.37m2
住所 東京都中央区築地7-14-14 築年月 2021年2月
交通

東京メトロ日比谷線築地駅』徒歩6

東京メトロ有楽町線新富町駅』徒歩8

都営大江戸線築地市場駅』徒歩12

東京メトロ銀座線銀座駅』徒歩17

都営浅草線東銀座駅』徒歩13

間取り図 階数 間取り 面積 賃料 管理費 敷金 礼金 お気に入り お問合わせ
1LDK 7階 1LDK 40.37m2 20.1万円 9,000円 1.0ヶ月 1.0ヶ月
全ての空室情報を表示 その他-2 閉じる
建物 16棟中  13~13棟表示
お気に入りに追加しました
お気に入りを解除しました
検索条件を保存しました
現在の検索条件
東銀座駅
こだわりの条件
東銀座駅
会社情報
賃貸コンシェルジュ

賃貸コンシェルジュ
(株式会社エスティリンク)

営業時間:10:00~19:00

定休日:(年中無休)

03-5468-8899
おすすめの物件