東銀座駅の賃貸物件一覧

建物 16 棟 部屋 42
表示棟数:

クオリア銀座3丁目 【05月17日更新】

分譲賃貸

初期費用クレジットカード決済可能

賃料 15.0万円 管理費 12,000円
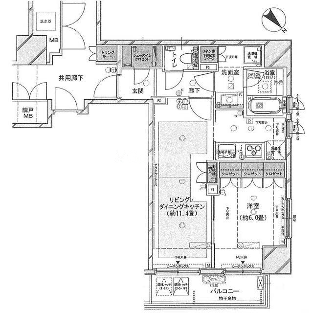
間取り 1K 面積 29.25m2
住所 東京都中央区銀座3-13-1 築年月 2004年5月
交通

都営浅草線東銀座駅』徒歩2

東京メトロ日比谷線東銀座駅』徒歩2

東京メトロ銀座線銀座駅』徒歩5

間取り図 階数 間取り 面積 賃料 管理費 敷金 礼金 お気に入り お問合わせ
1K 5階 1K 29.25m2 15.0万円 12,000円 1.0ヶ月 1.0ヶ月
全ての空室情報を表示 その他-2 閉じる
建物 16棟中  5~5棟表示
お気に入りに追加しました
お気に入りを解除しました
検索条件を保存しました
現在の検索条件
東銀座駅
こだわりの条件
東銀座駅
会社情報
賃貸コンシェルジュ

賃貸コンシェルジュ
(株式会社エスティリンク)

営業時間:10:00~19:00

定休日:(年中無休)

03-5468-8899
おすすめの物件