三田駅の賃貸物件一覧

建物 75 棟 部屋 244
表示棟数:

コンフォルト芝公園

初期費用クレジットカード決済可能

賃料 13.4万円 管理費 10,000円
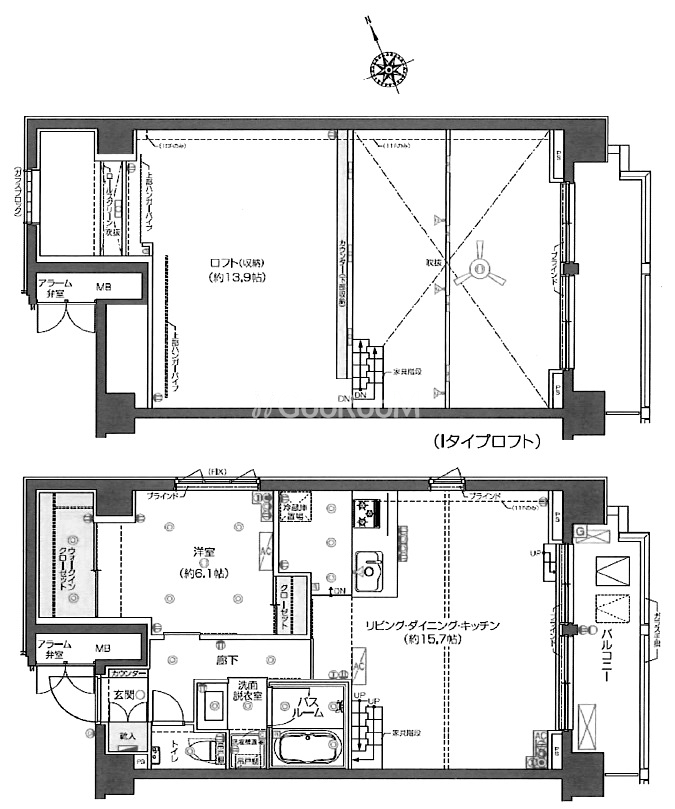
間取り 1K 面積 24.81m2
住所 東京都港区芝2-5-1 築年月 2019年3月
交通

JR山手線浜松町駅』徒歩8

都営三田線芝公園駅』徒歩2

都営三田線三田駅』徒歩7

間取り図 階数 間取り 面積 賃料 管理費 敷金 礼金 お気に入り お問合わせ
1K 3階 1K 24.81m2 13.4万円 10,000円 1.0ヶ月 1.0ヶ月
全ての空室情報を表示 その他-2 閉じる
建物 75棟中  75~75棟表示
お気に入りに追加しました
お気に入りを解除しました
検索条件を保存しました
現在の検索条件
三田駅
こだわりの条件
三田駅
会社情報
賃貸コンシェルジュ

賃貸コンシェルジュ
(株式会社エスティリンク)

営業時間:10:00~19:00

定休日:(年中無休)

03-5468-8899
おすすめの物件