デザイナーズマンションの賃貸物件一覧
建物 1,843 棟
部屋 4,679 室
表示棟数:
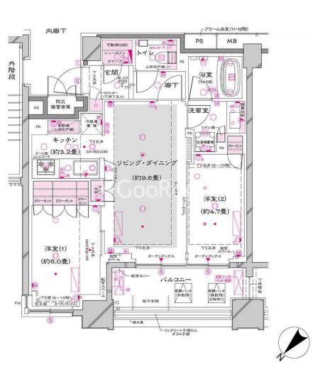
オーパスレジデンス銀座イースト 【04月29日更新】
お気に入りに追加しました
お気に入りを解除しました
検索条件を保存しました
会社情報
賃貸コンシェルジュ
(株式会社エスティリンク)
営業時間:10:00~19:00
定休日:(年中無休)
おすすめの物件
-
更新 04/29
- 元麻布ヒルズフォレストタワー
- 空室:1 部屋
- 面積:105.96m2
東京メトロ南北線
『麻布十番駅』徒歩10分
間取り:2LDK
賃料:160.0万円
-
更新 04/29
- パティオ南麻布
- 空室:1 部屋
- 面積:69.17m2
東京メトロ南北線
間取り:1LDK
賃料:28.8万円
-
更新 04/29
- レジディア芝浦
- 空室:4 部屋
- 面積:52.37m2〜53.06m2
JR山手線
『田町駅』徒歩12分
間取り:2LDK〜3DK
賃料:24.0万円〜25.8万円
-
更新 04/29
- ヨコソーレインボータワーハイツ
- 空室:2 部屋
- 面積:60.40m2〜63.40m2
ゆりかもめ
『芝浦ふ頭駅』徒歩1分
間取り:1LDK
賃料:29.8万円〜35.0万円
-
更新 04/29
- ルネパルティーレ汐留
- 空室:7 部屋
- 面積:53.47m2〜81.29m2
JR山手線
『新橋駅』徒歩8分
間取り:1K〜2LDK
賃料:33.0万円〜50.0万円
