賃貸物件一覧

建物 3,858 棟 部屋 14,595

の駅から探す

表示棟数:

ベルシード門前仲町2 【04月04日更新】

分譲賃貸

ペット相談

初期費用クレジットカード決済可能

賃料 11.5万円 管理費 18,000円
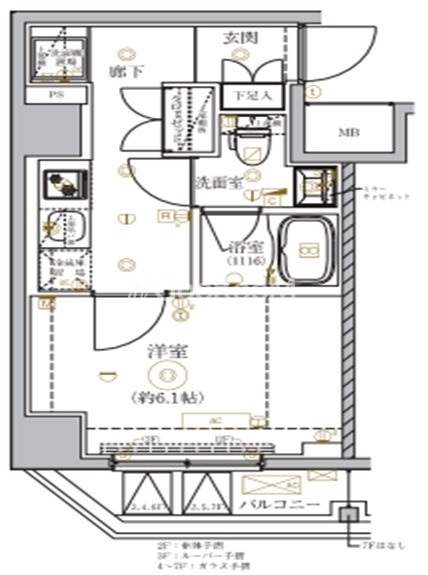
間取り 1K 面積 25.53m2
住所 東京都江東区永代2-37-20 築年月 2022年5月
交通

東京メトロ東西線門前仲町駅』徒歩5

都営大江戸線門前仲町駅』徒歩5

東京メトロ半蔵門線清澄白河駅』徒歩12

間取り図 階数 間取り 面積 賃料 管理費 敷金 礼金 お気に入り お問合わせ
1K 4階 1K 25.53m2 11.5万円 18,000円 1.0ヶ月 1.0ヶ月
全ての空室情報を表示 その他-2 閉じる
建物 3,858棟中  3037~3037棟表示
お気に入りに追加しました
お気に入りを解除しました
検索条件を保存しました
現在の検索条件
こだわりの条件
会社情報
賃貸コンシェルジュ

賃貸コンシェルジュ
(株式会社エスティリンク)

営業時間:10:00~19:00

定休日:(年中無休)

03-5468-8899
おすすめの物件