賃貸物件一覧

建物 4,100 棟 部屋 15,640

の駅から探す

表示棟数:

アルテシモクレア 【03月19日更新】

分譲賃貸

ペット相談

敷金ゼロ

初期費用クレジットカード決済可能

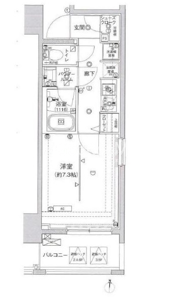
賃料 10.5万円 管理費 5,000円
間取り 1K 面積 25.08m2
住所 東京都墨田区立川2-11-15 築年月 2014年8月
交通

都営大江戸線森下駅』徒歩8

都営新宿線菊川駅』徒歩8

JR中央・総武線両国駅』徒歩15

間取り図 階数 間取り 面積 賃料 管理費 敷金 礼金 お気に入り お問合わせ
1K 2階 1K 25.08m2 10.5万円 5,000円 0.0ヶ月 1.0ヶ月
全ての空室情報を表示 その他-2 閉じる
建物 4,100棟中  3227~3227棟表示
お気に入りに追加しました
お気に入りを解除しました
検索条件を保存しました
現在の検索条件
こだわりの条件
会社情報
賃貸コンシェルジュ

賃貸コンシェルジュ
(株式会社エスティリンク)

営業時間:10:00~19:00

定休日:(年中無休)

03-5468-8899
おすすめの物件