賃貸物件一覧

建物 4,084 棟 部屋 15,558

の駅から探す

表示棟数:

シーフォルム入谷2 【03月18日更新】

仲介手数料無料

分譲賃貸

新築/築浅

ペット相談

初期費用クレジットカード決済可能

賃料 11.5万円 管理費 15,000円
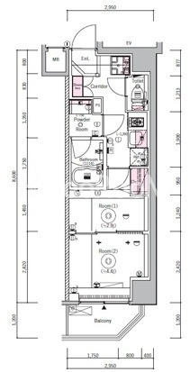
間取り 2K 面積 25.69m2
住所 東京都台東区千束3-33-3 築年月 2025年2月
交通

東京メトロ日比谷線三ノ輪駅』徒歩9

東京メトロ日比谷線入谷駅』徒歩10

つくばエクスプレス浅草駅』徒歩14

間取り図 階数 間取り 面積 賃料 管理費 敷金 礼金 お気に入り お問合わせ
2K 7階 2K 25.69m2 11.5万円 15,000円 1.0ヶ月 1.0ヶ月
全ての空室情報を表示 その他-2 閉じる
建物 4,084棟中  3270~3270棟表示
お気に入りに追加しました
お気に入りを解除しました
検索条件を保存しました
現在の検索条件
こだわりの条件
会社情報
賃貸コンシェルジュ

賃貸コンシェルジュ
(株式会社エスティリンク)

営業時間:10:00~19:00

定休日:(年中無休)

03-5468-8899
おすすめの物件