JR埼京線の賃貸物件一覧

建物 119 棟 部屋 568
表示棟数:

アーバンヴィスタ板橋本町

分譲賃貸

敷金ゼロ

初期費用クレジットカード決済可能

賃料 14.0万円 管理費 10,000円
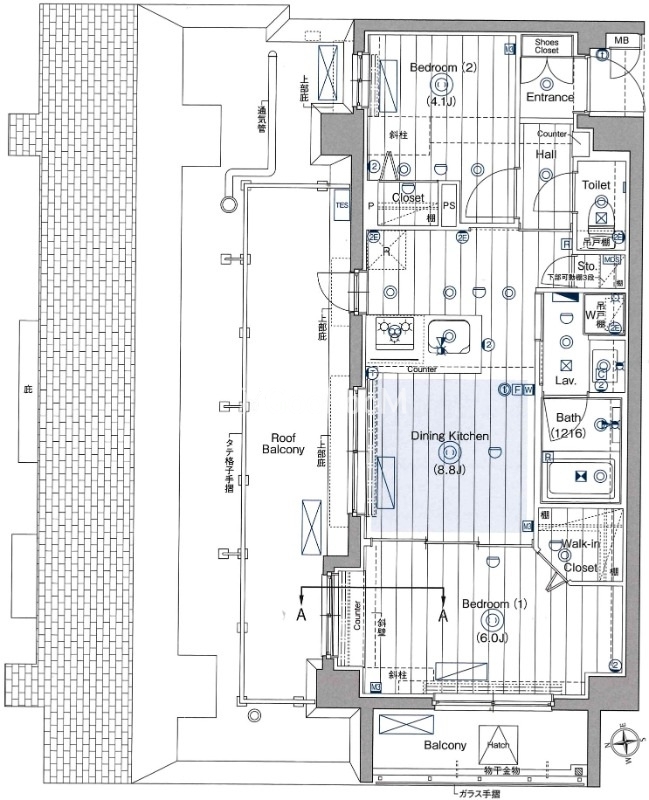
間取り 2DK 面積 44.25m2
住所 東京都板橋区富士見町5-3 築年月 2015年9月
交通

都営三田線板橋本町駅』徒歩6

東武東上線中板橋駅』徒歩14

JR埼京線十条駅』徒歩28

JR埼京線十条駅』徒歩28

都営三田線本蓮沼駅』徒歩13

間取り図 階数 間取り 面積 賃料 管理費 敷金 礼金 お気に入り お問合わせ
2DK 6階 2DK 44.25m2 14.0万円 10,000円 0.0ヶ月 1.0ヶ月
全ての空室情報を表示 その他-2 閉じる
建物 119棟中  115~115棟表示
お気に入りに追加しました
お気に入りを解除しました
検索条件を保存しました
現在の検索条件
路線
JR埼京線
こだわりの条件
路線 JR埼京線
会社情報
賃貸コンシェルジュ

賃貸コンシェルジュ
(株式会社エスティリンク)

営業時間:10:00~19:00

定休日:(年中無休)

03-5468-8899
おすすめの物件