大塚駅の賃貸物件一覧

建物 40 棟 部屋 223
表示棟数:

ズーム大塚 【04月02日更新】

ペット相談

初期費用クレジットカード決済可能

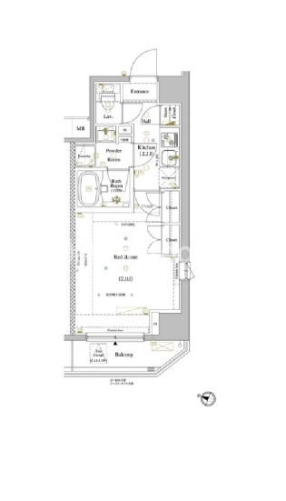
賃料 22.5万円 管理費 9,000円
間取り 1LDK 面積 46.52m2
住所 東京都豊島区北大塚1-34-9 築年月 2022年3月
交通

JR山手線大塚駅』徒歩5

都営都電荒川線巣鴨新田駅』徒歩4

間取り図 階数 間取り 面積 賃料 管理費 敷金 礼金 お気に入り お問合わせ
1LDK 8階 1LDK 46.52m2 22.5万円 9,000円 1.0ヶ月 1.0ヶ月
全ての空室情報を表示 その他-2 閉じる
建物 40棟中  36~36棟表示
お気に入りに追加しました
お気に入りを解除しました
検索条件を保存しました
現在の検索条件
大塚駅
こだわりの条件
大塚駅
会社情報
賃貸コンシェルジュ

賃貸コンシェルジュ
(株式会社エスティリンク)

営業時間:10:00~19:00

定休日:(年中無休)

03-5468-8899
おすすめの物件